Projetos
Publicações
Equipe
Contato
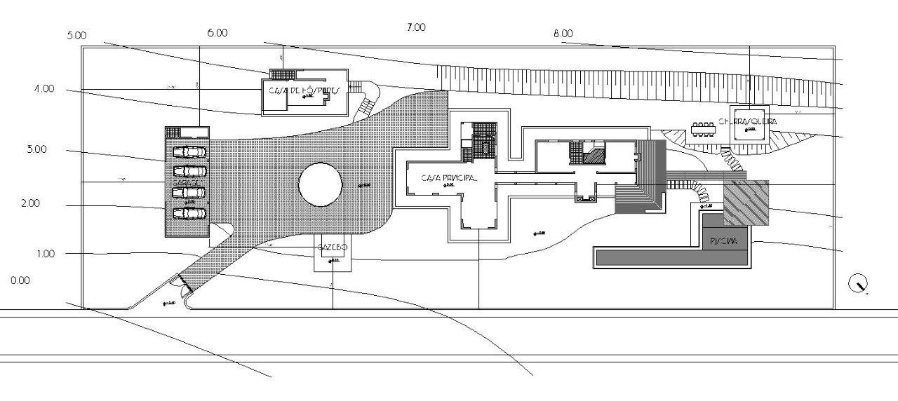
DSP - Residência Bragança Paulista
Implantação do projeto
Perspectiva ilustrativa área de lazer
Perspectiva ilustrativa geral
Perspectiva ilustrativa casa de hóspedes
Date
24 May 2017
Tags
Projetos conceituais